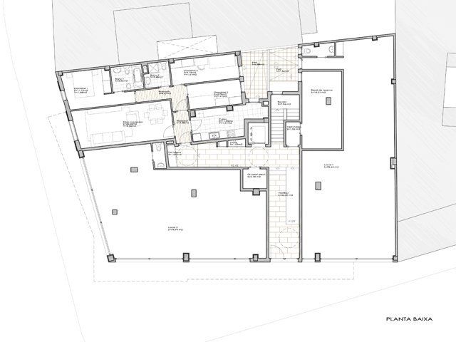
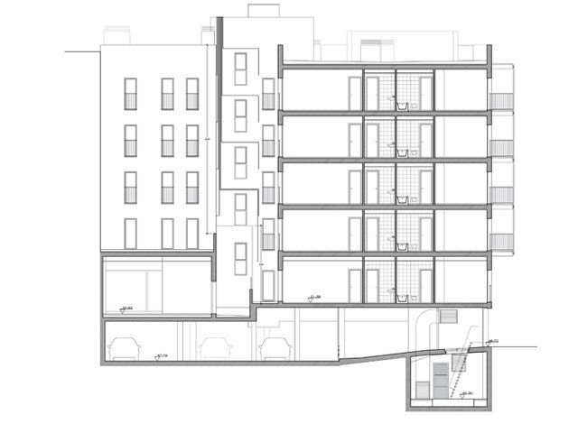
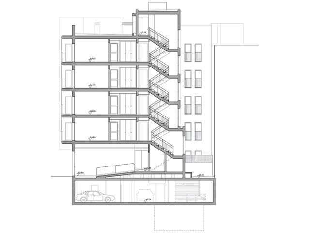
17 HABITATGES PROTEGITS, LOCALS I APARCAMENTS
Localització: Santa Coloma de Gramenet (Barcelona)
Superfície construïda: 2.400 m2
Promotor: GRAMEPARK SA
Projecte:
2008
Construcció:
2010-2013
Situat en una cantonada important de la ciutat, l'edifici pretén destacar entre l'arquitectura que l'envolta mitjançant un gran volum que sobresurt de la façana i la introducció de materials actuals.













